- 2019-05-31 09:26:38 | 访问量:2367
40平米的loft公寓楼遇上北欧风,会碰撞出怎样的火花
室内面积40平,Loft总层高4.4米,隔层2.4+2米,现代北欧格调,入户做了一面墙体,把客厅和玄关分隔开,左侧做了整面墙的收纳柜,开放格收纳柜在这里是一个亮点,大大增加柜体收纳的容量。


二层平面布置图
玄关通往客厅的过道空间,整面墙的白色柜体,再放进一台白色冰箱,要不是仔细看,还真就看不出来,楼梯下方做了储物柜,一点空间都没有浪费。
玄关与客厅有个层高差,走到客厅会有一种豁然开朗的感觉,原来房间这么高啊!
客餐厨一体式空间,地面铺设鱼骨拼木地板,右侧飘窗简单大方,视觉上呈现出完整统一的美感。

墨绿色电视背景搭配木色电视柜,电视墙右侧设计收纳展示柜
客厅左侧利用玄关新做的墙体,背面内嵌一个工作桌,真是寸土寸金,一点都没有浪费,还多了一个工作的地方。
餐厅,原木餐桌椅放在沙发后面,洄游动线让空间更加灵活,在餐厅边看电视边吃饭,相信这是追剧一族的福音。
厨房,纯黑色橱柜包裹木色吊柜和白色背景,丰富了质感与层次,并巧妙的形成框镜效果。

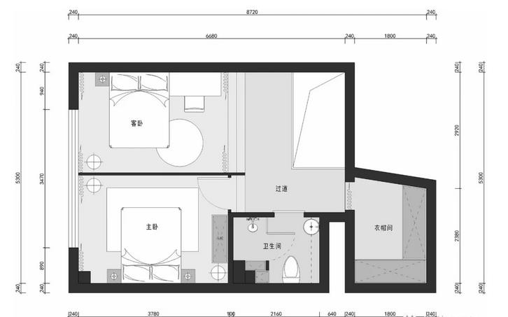
二楼,走廊连通两个卧室、卫生间和衣帽间,谷仓门与门帘,起到隔断与装饰的效果。
卧室层高控制在2米,使楼下客餐厅可以保证2.4米高度,绝对没有压抑感。
次卧,黑框玻璃推拉移门,白天可以保证过道采光,晚上把拉帘放开就是一个安静的睡觉环境了。

主卧延续墨绿色基调,整体功能简单纯粹,床边做了一个置物架,放一些小的物件还是蛮方便的。
卫生间,将浴室柜换成柱盆节省了空间,卫生间的活动空间增大了。
白色六角砖做白色美缝,都说黑白分明,选用黑色嵌入式水龙头,生活格调不是一般般啊。

淋浴房设置壁龛,深灰色墙砖搭配黑色花洒,时尚美观。
好板材,福晶造。福晶板材,专业做板材十八年,致力于打造健康环保的家庭居住环境,成为中国装饰材料优质服务商,福晶板材,您装饰装修环保板材的信心之选!


中国匠心品牌福晶板材,好板材,福晶造!
7*24小时服务热线:400-886-0276
福晶板材官网:http://www.fjwood.cn
- 闻木香自来-领取木头小样
- 2024-08-21
闻木香自来-领取木头小样
- 福晶香杉板 · 板香飘万家
- 2024-03-06
福晶香杉板 · 板香飘万家 甄选雪峰山香杉木,每张板都带有淡淡的木头香味。 福晶香杉板是一种独具创意的木材艺术品它不仅仅是一块板材更是一种生活方式的象征每一块福晶香杉板都蕴含着大自然的力量和人类的智慧它们的结合创造出了一种独特的生态板材++选料天然是我们天生的信仰++原料篇福晶香杉板以天然香杉木为原料经过现代高科技的精心加工保留了木材的天然纹理和质感每一块板材都经过多道工艺的精细打磨使其更加平整、
- 喜讯!福晶板材荣获“金谱奖”——板材行业消费者信赖品牌
- 2023-11-21
- 双重呵护“净”在福晶
- 2022-11-15
福晶32项工序制作流程 连续6年产品抽检合格 # 雪峰山香杉木 # 拥有先进生产设备70台,年生产量80余万张 其“福晶”牌系列产品,以其平整度好,翘曲可能性小,甲醛释放量低,内在质量优(芯板使用纯湘杉),被评为湖南省,产品荣获湖南省产品称号,属省林产品加工龙头企业。 主要经营项目涵盖:细木工板、生态板、指接板、装饰面板、胶合板、石膏板、木线、白乳胶、胶、玻璃软片、装饰五金等系列产品。 产
- 跨入ENF级时代
- 2022-11-15
福晶板材真正做到生产无添加 让中国家居环境更美好! ENF环保标准 全球最严苛环保标准!没有之一!几乎无醛性质! 随着社会的不断发展,人们对环保意识的不断加强许多家庭在选购板材的时候,最注重的就是环保。 大多数的消费者能够认识到的无非是:E1、E0 国外的环保标准无非为:NAF CARB标准、F4星标准 对于以上的可谓是:以前环保的最高标准! ---------------------------
- 喜讯︱福晶板材荣获“湖南省知名品牌”称号
- 2022-08-12
喜讯︱福晶板材荣获“湖南省知名品牌”称号 2022第十六届中国品牌节正式拉开帷幕 ·点燃火辣长沙·中国品牌星耀全城· 2022第十六届中国品牌节年会于8月8日在长沙北辰国际会议中心正式拉开帷幕。以“开发与奋进”为主题的很好的契合了国家当前的发展形势,也明确了作为中国品牌应该承担的责任与使命。 此届中国品牌节年会由品牌联盟、中国会展经济研究会联合主办,长沙市人民政府、湖南省工商业联合会、湖南省体育局


400-886-0276







