- 2019-04-30 11:07:16 | 访问量:2052
65平米温馨小家,从客厅美到卧室,那真叫绝了
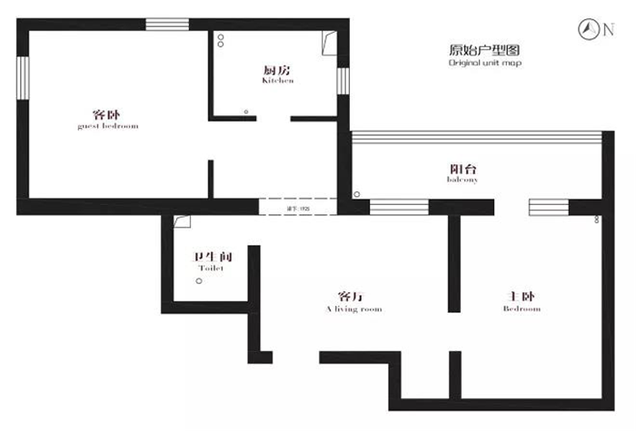
扫了一眼平面图,发现不少死穴,房子全都是一面开窗,空气无法形成对流,客厅没有合理的储存空间,并且四面都有门洞,这哪是客厅啊,整个就是一过道空间啊,电视没有合适的悬挂位置,采光只能通过与阳台连接的小窗透进来,光线肯定不好,卫生间只有2.4平米,还要满足多功能需求,能够不挤吗,餐厅位置比较尴尬,小就不说了,而且没有采光,想想在这样的餐厅吃饭,只怕食欲大受影响啊。

但是这些难题怎么能够难倒小福呢,盛誉绝不是浪得虚名,只做了几个改动,那效果完全不一样了,看看设计图吧。将餐厅客厅合二为一,餐厅原来的位置放冰箱,洗衣机和洗手台,这样不仅大大释放了厨房和卫生间的空间,而且洗手台和马桶淋浴可以同时使用,是不是很赞!半开放式的厨房,铁艺推拉门,即通透又时尚,并且把光线引入室内,是不是亮堂一大截!

是不是有些怦然心动了呢,下面就带领大家看看装修效果吧,一定是惊喜连连、亮点多多哟!
客 厅

木色和白色是最佳cp,惬意又温暖,沉醉春风里!因为房间不够高,所以只在沙发的顶部做了生态板吊顶,不仅使整个空间更有层次,还增添了一道自然时尚的风景。
阳台与客厅通过相连的窗孔相互借景,同时满足了客厅的采光、通风两种需求,每天窝在柔软的沙发里追剧、逗娃,人生的幸福时刻也不过如此吧?
小户型设计的关键是空间物尽其用,就拿卫生间的门来说,不仅仅是一扇门,更是一面全身镜,还能反射厨房透过来的光,餐厅立马亮起来!
餐 厅

几抹绿色是不是呼吸瞬间感到清新了,金属质感的摆件,精致自不必说,现代人梦寐以求的不就是这份简单精致吗,餐厅这一角是不是像极了咖啡吧,悠闲自在的午茶时光妙不可言!
厨 房

原来餐厅的位置设置了洗手台,冰箱、洗衣机放在这儿完全没有一点儿违和感,没有做不到,只有想不到!
卧 室

卧室和阳台一起做成套间,不仅拥有了2.7米的超大衣柜,还赚了一个独立的办公休闲空间,满满的情调!
客卧简单就好啦,人生若只如初见!
卫生间

怎么样,小福带你看了这装修效果,是不是大开眼界、惊喜连连!整体色差搭配就是好看,空间虽然比较小,但是经过这么一布置,舒适又温馨,让人顿生爱慕。


中国匠心品牌福晶板材,好板材,福晶造!
7*24小时服务热线:400-886-0276
福晶板材官网:http://www.fjwood.cn
- 闻木香自来-领取木头小样
- 2024-08-21
闻木香自来-领取木头小样
- 福晶香杉板 · 板香飘万家
- 2024-03-06
福晶香杉板 · 板香飘万家 甄选雪峰山香杉木,每张板都带有淡淡的木头香味。 福晶香杉板是一种独具创意的木材艺术品它不仅仅是一块板材更是一种生活方式的象征每一块福晶香杉板都蕴含着大自然的力量和人类的智慧它们的结合创造出了一种独特的生态板材++选料天然是我们天生的信仰++原料篇福晶香杉板以天然香杉木为原料经过现代高科技的精心加工保留了木材的天然纹理和质感每一块板材都经过多道工艺的精细打磨使其更加平整、
- 喜讯!福晶板材荣获“金谱奖”——板材行业消费者信赖品牌
- 2023-11-21
- 双重呵护“净”在福晶
- 2022-11-15
福晶32项工序制作流程 连续6年产品抽检合格 # 雪峰山香杉木 # 拥有先进生产设备70台,年生产量80余万张 其“福晶”牌系列产品,以其平整度好,翘曲可能性小,甲醛释放量低,内在质量优(芯板使用纯湘杉),被评为湖南省,产品荣获湖南省产品称号,属省林产品加工龙头企业。 主要经营项目涵盖:细木工板、生态板、指接板、装饰面板、胶合板、石膏板、木线、白乳胶、胶、玻璃软片、装饰五金等系列产品。 产
- 跨入ENF级时代
- 2022-11-15
福晶板材真正做到生产无添加 让中国家居环境更美好! ENF环保标准 全球最严苛环保标准!没有之一!几乎无醛性质! 随着社会的不断发展,人们对环保意识的不断加强许多家庭在选购板材的时候,最注重的就是环保。 大多数的消费者能够认识到的无非是:E1、E0 国外的环保标准无非为:NAF CARB标准、F4星标准 对于以上的可谓是:以前环保的最高标准! ---------------------------
- 喜讯︱福晶板材荣获“湖南省知名品牌”称号
- 2022-08-12
喜讯︱福晶板材荣获“湖南省知名品牌”称号 2022第十六届中国品牌节正式拉开帷幕 ·点燃火辣长沙·中国品牌星耀全城· 2022第十六届中国品牌节年会于8月8日在长沙北辰国际会议中心正式拉开帷幕。以“开发与奋进”为主题的很好的契合了国家当前的发展形势,也明确了作为中国品牌应该承担的责任与使命。 此届中国品牌节年会由品牌联盟、中国会展经济研究会联合主办,长沙市人民政府、湖南省工商业联合会、湖南省体育局


400-886-0276







