- 2021-04-06 11:44:06 | 访问量:10180
现代简约气质的装修, 越看越喜欢!
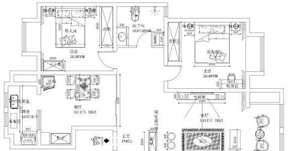
平面布局图:

效果鉴赏图:
(客厅)
客厅设计采用简约明朗的线条,将空间进行了合理的分隔。电视背景墙艺术花格茶镜造型,中间素色壁纸装饰,时间久了也不会觉得审美疲劳!


布艺沙发的使用及休闲椅的使用,更是深受现代年轻人的喜爱,灯光采用暖色调,奶咖色的墙漆,舒服温馨,对比的色调搭配令整个空间更加有活力。

餐厅突出简洁的形式,简洁的餐桌,背景墙加挂画装饰,让空间更有趣味,即使在小的空间也做到简约,实用。

卧室的设计,墙面采用暖色的墙漆,床头背景采用花纹壁纸装饰、茶镜等装饰,吊灯精致有别,以简洁的形式提升空间利用率,整个卧室的氛围柔和、舒适、轻松。


很多人对简约风格并不了解,认为简约就等于简单,但简约而不简单不是一句空话,简约风格非常注重空间的布局与使用功能的结合,用简洁的手法,体现出不凡的品质,也能让大家在日趋繁忙的生活中,回到家中身体和身心都能得到彻底的放松。

中国匠心品牌 福晶板材,好板材,福晶造!
7*24小时服务热线:400-886-0276
福晶板材官网:http://www.fjwood.cn
- 闻木香自来-领取木头小样
- 2024-08-21
闻木香自来-领取木头小样
- 福晶香杉板 · 板香飘万家
- 2024-03-06
福晶香杉板 · 板香飘万家 甄选雪峰山香杉木,每张板都带有淡淡的木头香味。 福晶香杉板是一种独具创意的木材艺术品它不仅仅是一块板材更是一种生活方式的象征每一块福晶香杉板都蕴含着大自然的力量和人类的智慧它们的结合创造出了一种独特的生态板材++选料天然是我们天生的信仰++原料篇福晶香杉板以天然香杉木为原料经过现代高科技的精心加工保留了木材的天然纹理和质感每一块板材都经过多道工艺的精细打磨使其更加平整、
- 喜讯!福晶板材荣获“金谱奖”——板材行业消费者信赖品牌
- 2023-11-21
- 双重呵护“净”在福晶
- 2022-11-15
福晶32项工序制作流程 连续6年产品抽检合格 # 雪峰山香杉木 # 拥有先进生产设备70台,年生产量80余万张 其“福晶”牌系列产品,以其平整度好,翘曲可能性小,甲醛释放量低,内在质量优(芯板使用纯湘杉),被评为湖南省,产品荣获湖南省产品称号,属省林产品加工龙头企业。 主要经营项目涵盖:细木工板、生态板、指接板、装饰面板、胶合板、石膏板、木线、白乳胶、胶、玻璃软片、装饰五金等系列产品。 产
- 跨入ENF级时代
- 2022-11-15
福晶板材真正做到生产无添加 让中国家居环境更美好! ENF环保标准 全球最严苛环保标准!没有之一!几乎无醛性质! 随着社会的不断发展,人们对环保意识的不断加强许多家庭在选购板材的时候,最注重的就是环保。 大多数的消费者能够认识到的无非是:E1、E0 国外的环保标准无非为:NAF CARB标准、F4星标准 对于以上的可谓是:以前环保的最高标准! ---------------------------
- 喜讯︱福晶板材荣获“湖南省知名品牌”称号
- 2022-08-12
喜讯︱福晶板材荣获“湖南省知名品牌”称号 2022第十六届中国品牌节正式拉开帷幕 ·点燃火辣长沙·中国品牌星耀全城· 2022第十六届中国品牌节年会于8月8日在长沙北辰国际会议中心正式拉开帷幕。以“开发与奋进”为主题的很好的契合了国家当前的发展形势,也明确了作为中国品牌应该承担的责任与使命。 此届中国品牌节年会由品牌联盟、中国会展经济研究会联合主办,长沙市人民政府、湖南省工商业联合会、湖南省体育局


400-886-0276







