- 2021-06-15 09:18:13 | 访问量:8116
140㎡简约原木风,家,就该如此舒适自然!
未经修饰的原生态木材,是一种极具生命力的材质。它质感天然、肌理丰富,色泽比较淡雅、舒缓,散发着一种质朴无华的自然韵味,所以一旦在家里大面积地铺展开来,就仿佛让人置身于自然之中,每次回到家都是一次心灵的放松。
这套140平米的房子,整体以简约自然的原木风格为主调,在灰色调的空间里,营造出舒适清闲的惬意氛围,这样的氛围也正是年轻人所热衷的舒适生活空间感。
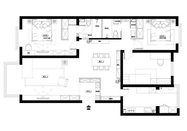
——平面设计图——

▲玄关地面铺设的是灰色仿古砖,正对大门与右侧都是方便实用的收纳柜,右侧柜子底部还留了两层开放鞋架,日常更换的鞋子可以方便放置在此。

▲换鞋凳的后方装了一个小室内窗,让阳台的光线可以透过厨房进入到玄关,使得整体空间更加明亮舒适。

▲整个客厅以简约大方的风格为基调,在宽松的布局下,给人以惬意轻松的自然氛围感。

▲客厅电视墙以木质定制柜体+灰色大理石墙面背景,整体简洁,显得自然优雅好大方。

▲电视墙左侧的木质柜体中嵌入深色的开放格架,可以摆放些精致的装饰品,增加室内设计艺术感。

▲素雅的灰色布艺沙发,木质复古的茶几,再结合一旁的大盆栽,呈现出年轻自然的清新感。

▲沙发墙上挂着简约现代风的装饰画,顶上的导轨灯与一旁的臂杆灯,也为客厅提供了舒适实用的照明。

▲餐厅顶部有横梁,所以选择木质的假梁来装饰隐藏,整体木质与餐边柜搭配和谐统一, 餐边柜上方的墙面也是与电视墙一致的大理石质感,视觉效果高档华丽。

▲木质餐桌上方挂两盏玫瑰金色的吊灯,走廊间也是木质的墙面,整体空间更是显得简约自然。

▲另一侧的过道上是装了白色的收纳柜,简洁优雅的搭配让家更加温馨有气质。

▲厨房地面是大规格的白色六边砖,搭配木质橱柜,把阳台打通成为厨房的一部分,在大面积落地窗的烘托下,整体空间显得明亮优雅大方。

▲卧室床头墙以木色为背景,搭配颜色稍深的木质床与床头柜,整体显得层次丰富有档次。

▲两侧床头柜上方装有吊灯,为床头带来了温馨舒适的照明,结合木质背景墙,靠在这里看书阅读,将会是一个暖心舒适的惬意生活。

——次卧——
▲木饰面的床头墙,乳胶漆的墙身,在床头柜上方挂了壁灯,再搭配与主卧一致的软装布置,整屋的风格和谐自然。

▲这种简约的原木风格与灰木配色调布置,更适合年轻人的生活空间。

▲儿童房效果图可以看出,在收纳柜+上下铺结合的设计下,留多余区域作为孩子的活动区与作业区,上下台阶也做成收纳柜的模式,整个空间利用得巧妙而精致。

▲卫生间以不同颜色纹理的六边砖拼接地面和墙面,搭配木质洗手盆柜与侧边白色的收纳柜,洗衣机嵌入到洗手盆旁边的台面下,使整个空间看起来协调不拥挤。

▲淋浴区是复古调的灰色砖墙面,让空间还带着一丝丝的怀旧质感。

▲主人卫生间地面与客卫一致,简洁的质感,彰显着主人不平凡的生活品质。

简约原木风在现如今的家居装修中也是很受欢迎的一种,这种风格的装修往往给人带来一种很自然又很舒适的感觉,而这也正是很多年轻人所想要的。

匠心品牌 福晶板材,好板材,福晶造!
7*24小时服务热线:400-886-0276
福晶板材官网:http://www.fjwood.cn
- 闻木香自来-领取木头小样
- 2024-08-21
闻木香自来-领取木头小样
- 福晶香杉板 · 板香飘万家
- 2024-03-06
福晶香杉板 · 板香飘万家 甄选雪峰山香杉木,每张板都带有淡淡的木头香味。 福晶香杉板是一种独具创意的木材艺术品它不仅仅是一块板材更是一种生活方式的象征每一块福晶香杉板都蕴含着大自然的力量和人类的智慧它们的结合创造出了一种独特的生态板材++选料天然是我们天生的信仰++原料篇福晶香杉板以天然香杉木为原料经过现代高科技的精心加工保留了木材的天然纹理和质感每一块板材都经过多道工艺的精细打磨使其更加平整、
- 喜讯!福晶板材荣获“金谱奖”——板材行业消费者信赖品牌
- 2023-11-21
- 双重呵护“净”在福晶
- 2022-11-15
福晶32项工序制作流程 连续6年产品抽检合格 # 雪峰山香杉木 # 拥有先进生产设备70台,年生产量80余万张 其“福晶”牌系列产品,以其平整度好,翘曲可能性小,甲醛释放量低,内在质量优(芯板使用纯湘杉),被评为湖南省,产品荣获湖南省产品称号,属省林产品加工龙头企业。 主要经营项目涵盖:细木工板、生态板、指接板、装饰面板、胶合板、石膏板、木线、白乳胶、胶、玻璃软片、装饰五金等系列产品。 产
- 跨入ENF级时代
- 2022-11-15
福晶板材真正做到生产无添加 让中国家居环境更美好! ENF环保标准 全球最严苛环保标准!没有之一!几乎无醛性质! 随着社会的不断发展,人们对环保意识的不断加强许多家庭在选购板材的时候,最注重的就是环保。 大多数的消费者能够认识到的无非是:E1、E0 国外的环保标准无非为:NAF CARB标准、F4星标准 对于以上的可谓是:以前环保的最高标准! ---------------------------
- 喜讯︱福晶板材荣获“湖南省知名品牌”称号
- 2022-08-12
喜讯︱福晶板材荣获“湖南省知名品牌”称号 2022第十六届中国品牌节正式拉开帷幕 ·点燃火辣长沙·中国品牌星耀全城· 2022第十六届中国品牌节年会于8月8日在长沙北辰国际会议中心正式拉开帷幕。以“开发与奋进”为主题的很好的契合了国家当前的发展形势,也明确了作为中国品牌应该承担的责任与使命。 此届中国品牌节年会由品牌联盟、中国会展经济研究会联合主办,长沙市人民政府、湖南省工商业联合会、湖南省体育局


400-886-0276







